Stolzenhagen
Lage: Das Gebäude wurde auf einem bisher unbebauten Grundstück auf einer Anhöhe errichtet. Es markiert den nordwestlichen Eckpunkt eines größeren Gebäudeensembles einer alten landwirtschaftlichen Gutsanlage, welche inzwischen durch weitere Wohnnutzungen geprägt ist. Die Bewohner sind junge Leute und Familien. Sie leben auf dem Land und haben tlw. eine Anbindung zur Stadt und sind – einschl. des Nutzers dieses vorgestellten Projektes – in einer Genossenschaft organisiert.
Konzept:
Es galt die Aufgabe des Bauherren umzusetzen, ein in Material und Energiekonzept möglichst ökologisches Gebäude zu errichten. Es soll in der Hauptnutzung zum Wohnen dienen. Ein größerer zentraler Wohnraum soll aber temporär auch als Studio für Musikproben genutzt werden.
Das Gebäude soll sich einerseits in die Landschaft einpassen (horizontale Gliederung). Andererseits sind die Blickbezüge zur Landschaft miteinzubeziehen. So gibt es eine sehr offene Südseite mit Blick in den Garten und Bezug zum Gutshof, ein großes Fenster mit Küchenterrasse nach Norden mit Blick ins Dorf-Tal und zur Kirche sowie eine große Dachterrasse nach Südwesten zur untergehenden Sonne.
Bauweise:
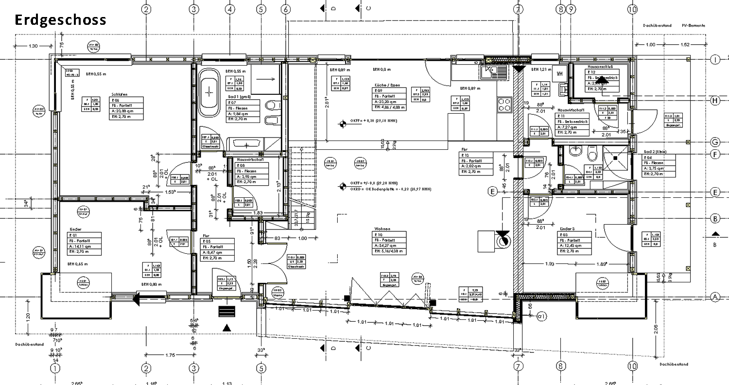
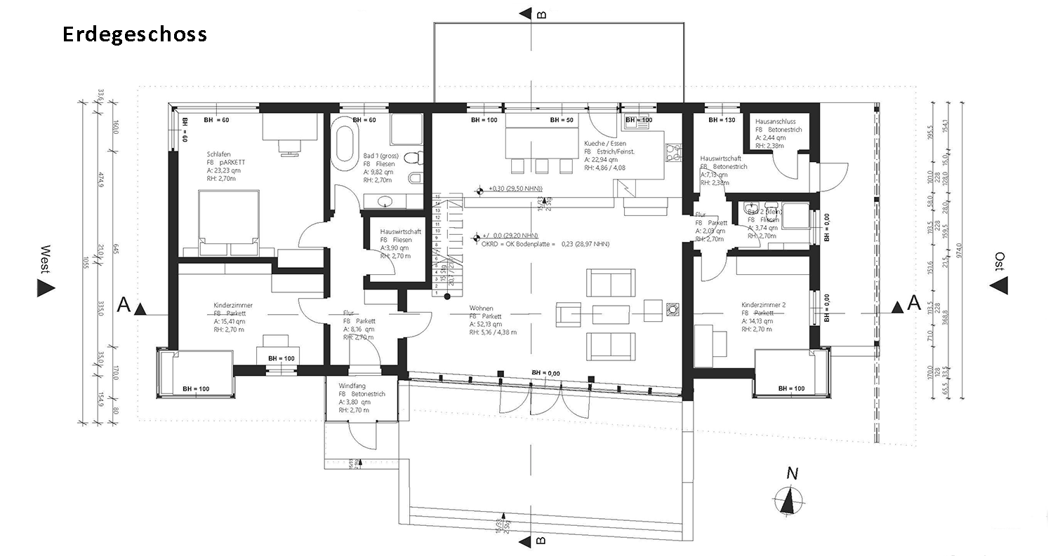
Um einen mittleren hohen Raum, welcher der Wohnnutzung dient sowie Küche und Essbereich enthält, gliedern sich alle Nebenräume. Das Gebäude besteht so aus 3 Baukörpern: Mittelraum und zwei Seitenflügel.
Auf einem Fundamentunterbau mit Glasschaumschotterdämmung wurden alle Wände in Holzständerbauweise errichtet, mit Ausnahme einer massiven tragenden Backsteininnenwand als Speicherwand. Die Holzbauwände erhielten eine Ausfachung mit Holzdämmmatten und die Stützen wurden anschließend mit einer Holzweichfaserplatte beidseitig beplankt. Diese dient gleichzeitig als Putzträger. Ein durchgefärbter Lehmputz bildet den äußeren sichtbaren Abschluss.
Das flach geneigte Dach besteht aus zwei quer zueinander liegenden Holzbalkenlagen. Die raumseitige, untere Lage ist gedämmt, die obere Lage dient der Hinterlüftung (sommerlicher Wärmeschutz, Feuchteregulator). Die Dachflächen sind begrünt und über eine Galerie tlw. begehbar.
Energiekonzept:
Das Gebäude ist mit einem hocheffizienten Wärmeversorgungskonzept ausgestattet, welches ein Höchstmaß an Erneuerbaren Energien verwendet.
Herzstück dieses Konzeptes ist ein Wärmespeicher aus in Sand verlegten Rohrregistern unter der Bodenplatte des Gebäudes. (eTank)
Dieser Speicher wird durch eine Solarthermische Anlage auf eine Endtemperatur von 26°C aufgeheizt und dient der Wärmepumpe als Wärmequelle.
Dadurch erreicht sowohl die Solaranlage als auch die Wärmepumpe eine sehr hohe Effizienz.
Die Solaranlage kann wegen der niedrigen Temperatur im eTank bereits bei geringer Einstrahlung Wärme an das System abgeben. Die Wärmepumpe erreicht durch die gegenüber anderen Wärmequellen um ca. 10°C höhere Quelltemperatur extrem hohe Arbeitszahlen.
Bei hoher Solareinstrahlung wird durch die Solaranlage zuerst der ebenfalls vorhandene Hochtemperaturspeicher aufgeladen. In diesem Fall bleibt die Wärmepumpe gänzlich aus und es wird außer etwas Pumpenstrom keinerlei zusätzliche Energie benötigt. In der kalten sonnenarmen Jahreszeit, läuft die Wärmepumpe und nutzt dabei die im eTank gespeicherte Energie.
Die Wärme wird mit niedrigen Temperaturen über eine Fußbodenheizung an das Gebäude abgegeben.
Die Warmwasserbereitung erfolgt über eine Frischwasserstation hygienisch und mit niedrigen Temperaturen.







