Zum Inhalt springen
  • Home
  • Projekte
    • Ökologisches Bauen
    • Altbau
    • Neubau
    • Forschung-Entwicklung
  • Das Büro
  • Partner
  • Bauherrnleitfaden

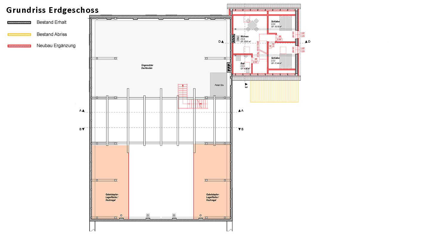
Kraatz Mosterei


← zurück zur Galerie

Kraatz

  • Kontakt
  • Impressum
  • Datenschutz

Ökologisches Bauen

Altbau

Neubau

Forschung und Entwicklung